Ankündigungen
Martin Schulz wird am 20. Mai zu einer Wahlveranstaltung nach Kirchheimbolanden in die Orangerie kommen. Ab 19 Uhr spricht der Europaexperte über dei Zukunft der Europäischen Union. Außerdem werden Gustav Herzog, MdB; Tristan Werner, Parteivorsitzender und Siegfried Groß, Stadtbürgermeisterkandidat sprechen. Wir freuen uns auf euer kommen!
Endlich!
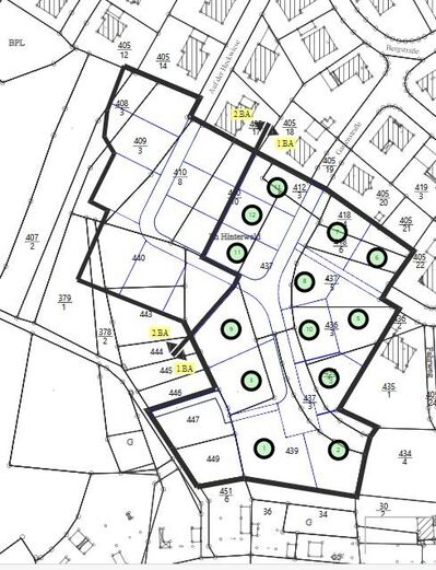
In der Ortsgemeinde Höringen wird das Neubaugebiet "Heckwiese Wohnpark 2020" in zwei Bauabschnitten realisiert. Die Straßen "Auf der Heckwiese" und "Gartenstraße" werden nach Süden ausgebaut und miteinander verbunden werden. Die Grundstücksgrößen liegen im 1. Bauabschnitts bei durchschnittlich 620m², und im 2. Bauabschnitt bei ca. 530 m². Die Bebauung ist in Einzel- und Doppelhäusern vorgesehen. Das idyllische gelegene Höringen ist eine Ortsgemeinde im Donnersbergkreis in Rheinland-Pfalz und gehört der Verbandsgemeinde Winnweiler an. Die Gemeinde verfügt über einen Bürgerladen zur Grundversorgung, einen Kindergarten sowie über Gastronomie. Die Ortsgemeinde ist an das Glasfasernetz angeschlossen und verfügt über eine Internetversorgung von 100MBit/s. Eine aktive Dorfgemeinschaft mit vielen Vereinen und die natürliche Umgebung mit vielen Naherholungszielen in der unmittelbaren Nähe rundet das angenehme Wohngefühl in der Ortsgemeinde ab.
Eine ausgezeichnete Infrastruktur, eine Grundschule, Realschule Plus und Gymnasium, sowie die gute Verkehrsanbindung, Autobahnanschluss A 63, Lage an der B 48 und L 401 sowie einer Bahnstation im benachbarten Winnweiler begründen eine leistungsfähige Geschäftswelt.
Mehr Infos unter WVE-KL.de/wohnpark-hoeringen
Für Anfragen wenden Sie sich bitte an die WVE Kaiserslautern. Telefonnummer 0631 / 3723 189, schreiben Sie an i.weiss@wve-kl.de oder besuchen Sie das Vermarktungsbüro am Stiftsplatz 6-7, 67655 Kaiserslautern.

Feiert mit uns die Vor-Fastnacht! Mit dabei: -Tanzmäuse und Coolkids der Vereinigte Turnerschaft Rockenhausen 1885 e.V. -Tanzmariechen und kleine Garde des RoHau Karnevalverein Rockenhausen 2009 e.V. -Zaubershow Der Eintritt ist wie immer kostenlos, für das leibliche Wohl ist gesorgt. Wir freuen uns auf Euer Kommen.